SSQ型鑄鐵伸縮器
SSQ型鑄鐵伸縮器也稱伸縮節、膨脹節、補償器、伸縮接頭。伸縮器在一定范圍內可軸向伸縮,也能在一定的角度內克服管道對接不同軸向而產生的偏移,能極大的方便閥門管道的安裝與拆卸,在管道允許伸縮量中可以自由伸縮,一…
|
SSQ型鑄鐵伸縮器也稱伸縮節、膨脹節、補償器、伸縮接頭。伸縮器在一定范圍內可軸向伸縮,也能在一定的角度內克服管道對接不同軸向而產生的偏移,能極大的方便閥門管道的安裝與拆卸,在管道允許伸縮量中可以自由伸縮,一旦越過其最大伸縮量就起到限位,確保管道的安全運行。
SSQ型鑄鐵伸縮器主要為保障管道安全運行,具有以下作用:補償吸收管道軸向、橫向、角向熱變形;吸收設備振動,減少設備振動對管道的影響;吸收地震、地陷對管道的變形量。
詳細介紹:
1. 該產品為各種給排水管道、水塔、水泵、水表、閥門的安裝拆換提供了極大方便,給長距離管路因溫差伸縮起到了很好的調節作用。
2. 該產品內管材分為鑄鐵( HT )、鍍鋅( DX )和鋼制( SF )三種。工作壓力分 PN6 、 PN10 、 PN16 三種。
3. 安裝前須松開壓盤螺栓,將該產品拉至安裝長度,然后用對角法擰緊,切勿壓偏,如架空使用,兩端須安裝相應的固定支架。
4. 法蘭連接采用 GB4216.3 - 4126.5 標準。
5. 如選用其它規格可另行生產。
產品用途:
伸縮器是泵、閥門,管道等設備與管道連接的新產品,通過全螺栓把它們連接起來,使其成為整體,并有一定的位移量,方便安裝?沙惺芄芫的軸向壓力。這樣就可以在安裝維修時,根據現場安裝尺寸進行調整,在工作時,不僅提高工作效率,而切對泵、閥們等管道設備起到一定保護作用。
適用介質:
本產品適用于輸送海水、淡水、冷熱水、飲用水、生活污水、原油、燃油、潤滑油、成品油、空氣、煤氣、溫度不高于250度的蒸汽和顆粒粉狀等介質。
使用范圍:
由于伸縮器具有良好的綜合性能,所以它廣泛用于化工、建筑、給水、排水、石油、輕重工業、冷凍、衛生、水暖、消防、電力等基礎工程。
具體分類:
SSQ型鑄鐵伸縮器,SF鋼制伸縮器,CS型熱力管道伸縮器,SSQ-1型套管式伸縮器,SSQ-2型套管式伸縮器,SSQ-3型套管式伸縮器,鋼型套管式伸縮器,插口式伸縮器,承盤式伸縮器,兩端法蘭限位防拉脫壓盤式伸縮器,法蘭式伸縮器,兩端法蘭伸縮器,兩端法蘭壓盤式限位伸縮器,耐高壓灰管大位移伸縮器。
安裝注意事項:
1、伸縮器在安裝前應先檢查其型號、規格及管道配置情況,必須符合設計要求。
2、對帶內套筒的伸縮器應注意使內套筒子的方向與介質流動方向一致,鉸鏈型伸縮器的鉸鏈轉動平面應與位移轉動平面一致。
3、需要進行“冷緊”的伸縮器,預變形所用的輔助構件應在管路安裝完畢后方可拆除。
4、嚴禁用伸縮器變形的方法來調整管道的安裝超差,以免影響伸縮器的正常功能、降低使用壽命及增加管系、設備、支承構件的載荷。
5、安裝過程中,不允許焊渣飛濺到波殼表面,不允許波殼受到其它機械損傷。
6、管系安裝完畢后,應盡快拆除波伸縮器上用作安裝運輸的黃色輔助定位構件及緊固件,并按設計要求將限位裝置調到規定位置,使管系在環境條件下有充分的補償能力。
7、伸縮器所有活動元件不得被外部構件卡死或限制其活動范圍,應保證各活動部位的正常動作。
8、水壓試驗時,應對裝有伸縮器管路端部的次固定管架進行加固,使管路不發生移動或轉動。對用于氣體介質的伸縮器及其連接管路,要注意充水時是否需要增設臨時支架。水壓試驗用水清洗液的96氯離子含量不超過25PPM。
SSQ型鑄鐵伸縮器主要為保障管道安全運行,具有以下作用:補償吸收管道軸向、橫向、角向熱變形;吸收設備振動,減少設備振動對管道的影響;吸收地震、地陷對管道的變形量。
詳細介紹:
1. 該產品為各種給排水管道、水塔、水泵、水表、閥門的安裝拆換提供了極大方便,給長距離管路因溫差伸縮起到了很好的調節作用。
2. 該產品內管材分為鑄鐵( HT )、鍍鋅( DX )和鋼制( SF )三種。工作壓力分 PN6 、 PN10 、 PN16 三種。
3. 安裝前須松開壓盤螺栓,將該產品拉至安裝長度,然后用對角法擰緊,切勿壓偏,如架空使用,兩端須安裝相應的固定支架。
4. 法蘭連接采用 GB4216.3 - 4126.5 標準。
5. 如選用其它規格可另行生產。
產品用途:
伸縮器是泵、閥門,管道等設備與管道連接的新產品,通過全螺栓把它們連接起來,使其成為整體,并有一定的位移量,方便安裝?沙惺芄芫的軸向壓力。這樣就可以在安裝維修時,根據現場安裝尺寸進行調整,在工作時,不僅提高工作效率,而切對泵、閥們等管道設備起到一定保護作用。
適用介質:
本產品適用于輸送海水、淡水、冷熱水、飲用水、生活污水、原油、燃油、潤滑油、成品油、空氣、煤氣、溫度不高于250度的蒸汽和顆粒粉狀等介質。
使用范圍:
由于伸縮器具有良好的綜合性能,所以它廣泛用于化工、建筑、給水、排水、石油、輕重工業、冷凍、衛生、水暖、消防、電力等基礎工程。
具體分類:
SSQ型鑄鐵伸縮器,SF鋼制伸縮器,CS型熱力管道伸縮器,SSQ-1型套管式伸縮器,SSQ-2型套管式伸縮器,SSQ-3型套管式伸縮器,鋼型套管式伸縮器,插口式伸縮器,承盤式伸縮器,兩端法蘭限位防拉脫壓盤式伸縮器,法蘭式伸縮器,兩端法蘭伸縮器,兩端法蘭壓盤式限位伸縮器,耐高壓灰管大位移伸縮器。
安裝注意事項:
1、伸縮器在安裝前應先檢查其型號、規格及管道配置情況,必須符合設計要求。
2、對帶內套筒的伸縮器應注意使內套筒子的方向與介質流動方向一致,鉸鏈型伸縮器的鉸鏈轉動平面應與位移轉動平面一致。
3、需要進行“冷緊”的伸縮器,預變形所用的輔助構件應在管路安裝完畢后方可拆除。
4、嚴禁用伸縮器變形的方法來調整管道的安裝超差,以免影響伸縮器的正常功能、降低使用壽命及增加管系、設備、支承構件的載荷。
5、安裝過程中,不允許焊渣飛濺到波殼表面,不允許波殼受到其它機械損傷。
6、管系安裝完畢后,應盡快拆除波伸縮器上用作安裝運輸的黃色輔助定位構件及緊固件,并按設計要求將限位裝置調到規定位置,使管系在環境條件下有充分的補償能力。
7、伸縮器所有活動元件不得被外部構件卡死或限制其活動范圍,應保證各活動部位的正常動作。
8、水壓試驗時,應對裝有伸縮器管路端部的次固定管架進行加固,使管路不發生移動或轉動。對用于氣體介質的伸縮器及其連接管路,要注意充水時是否需要增設臨時支架。水壓試驗用水清洗液的96氯離子含量不超過25PPM。

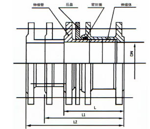
SSQ型鑄鐵伸縮器安裝數據表
|
公稱通徑 |
最小長度L |
安裝長度L1 |
最大長度L2 |
|
40 |
140 |
170 |
200 |
|
50 |
140 |
170 |
200 |
|
65 |
160 |
205 |
250 |
|
80 |
180 |
225 |
270 |
|
100 |
200 |
250 |
300 |
|
125 |
220 |
250 |
300 |
|
150 |
220 |
270 |
320 |
|
200 |
240 |
290 |
320 |
|
250 |
260 |
315 |
370 |
|
300 |
280 |
340 |
400 |
|
350 |
290 |
350 |
410 |
|
400 |
300 |
360 |
420 |
|
450 |
320 |
385 |
450 |
|
500 |
320 |
385 |
450 |
|
600 |
350 |
415 |
480 |
|
700 |
370 |
440 |
510 |
|
800 |
390 |
460 |
530 |
|
900 |
420 |
495 |
570 |
|
1000 |
440 |
515 |
590 |
|
1200 |
490 |
570 |
650 |
|
1400 |
520 |
605 |
690 |
|
1600 |
550 |
640 |
730 |
|
1800 |
590 |
680 |
770 |
|
2000 |
630 |
720 |
810 |
|
2200 |
670 |
760 |
850 |
|
2400 |
710 |
800 |
890 |
|
2600 |
750 |
840 |
930 |
|
2800 |
290 |
880 |
970 |
|
3000 |
840 |
920 |
1010 |
|
3200 |
880 |
960 |
1050 |
|
3400 |
920 |
1000 |
1090 |
壓蓋式松套伸縮接頭
壓蓋式松套伸縮接頭型號SSJB(GB/T12465-1999)或AY(GB/T12465-2002)型,壓蓋松套伸縮接頭使管道連接簡便,快速,安裝,可靠。壓蓋式伸縮接頭產品結構設計合理,密封性能可靠。
伸縮節 伸縮器
因為管道的熱脹冷縮,所以對于管道來說,就要產生管壁的應力和推拉力;管壁應力大小,影響管道的強度,推拉力增大,管道的固定支架就要做的很大,來承受管道伸縮所產生的推拉力;所以利用伸縮節補償的變開量辦法,以…
SQX雙法蘭限位伸縮器
雙法蘭限位伸縮器型號SF/SQX,通稱伸縮器或管道補償器。其結構形式同套管式鑄鐵伸縮器幾乎一樣,它分為限位伸縮器和非限位伸縮器兩種,訂貨是務必注明是否安裝限位裝置。伸縮器優點:可根據用戶要求的伸縮量加工,可…
百度客戶咨詢新躍卡箍式橡膠接頭
近日,我公司的一個客服人員在百度推廣上接到一個客戶的咨詢,他想了解我公司生產的卡箍式橡膠接頭,我公司的客服人員給他了一份最詳細的介紹。我公司生產的卡箍式橡膠接頭采用優質的橡膠材料,根據所過介質的不同,…
新躍總經理和工人代表一起去植樹
新躍總經理和工人代表一起去植樹鞏義市新躍供水材料有限公司是專業生產橡膠接頭的廠家,我公司生產的橡膠接頭主要系列有:可曲撓橡膠接頭、翻邊緣橡膠接頭、異徑橡膠接頭、雙球體橡膠接頭等產品,我公司生產的橡膠接…
防止橡膠接頭開裂的幾個有效措施
防止橡膠接頭開裂的幾個有效措施咨詢橡膠接頭,橡膠軟接頭的價格請撥打0371-64100977。想要防止橡膠接頭的開裂,我們在平時的使用中就要留意對其進行保護,按照以下的操縱步驟就可以了,我們機會減少斷裂的事件發生!
橡膠接頭 撓性橡膠接頭…
橡膠接頭、卡箍橡膠接頭、大翻邊橡膠接頭新躍橡膠接頭廠家,專業生產,量大從優!

不銹鋼雙法蘭限位伸縮…
不銹鋼雙法蘭伸縮接頭是由本體、密封圈、壓蓋、伸縮短管等主要部件組成。在松套伸縮接頭原有性能的基礎上增設限位裝置,在最大伸縮量處用雙螺母鎖定。管道在允許的伸縮量中可以自由伸縮,一旦超…

可曲撓橡膠接頭
可曲撓橡膠接頭簡介可曲撓橡膠接頭又叫做橡膠管軟接頭、柔性橡膠接頭、橡膠軟接頭、橡膠接頭、高壓橡膠接頭、橡膠減震器、補償器等。按連接方式分松套法蘭式、固定法蘭式和螺紋式3種;按結構可分…

人防穿線密閉套管
穿線密閉套管說明:1、當迎水面為腐蝕性介質時,可采用封堵材料將縫隙封堵;2.套管穿墻處如遇非混凝土墻壁時,應局部改用混凝土墻壁,其澆注范圍應比翼環直徑(DS)大200,并且必須將套管一次澆固…



![{sdcms[webname]} {sdcms[webname]}](/skins/2009/dw/images/foot_logo.png)
微信